Istrien, Porec-Einfamilienhaus mit Swimmingpool

Preis:
770.000 €
Fläche:
208,13 m2
ID-Code:
300391030-332

Immobilien Details

Standort:
Matulini, Poreč
Transaktionen:
Zu verkaufen
Immobilien-Typ:
Haus
Anzahl der Zimmer:
5
Schlafzimmer:
4
Badezimmer:
4
Toiletten:
1
Stockwerke:
1
Preis:
770.000 €
Fläche:
208,13 m2
Gartenfläche:
640 m2

Beschreibung

Zum Verkauf steht ein im Bau befindliches Haus in der Nähe von Poreč mit einer Wohnfläche von 210 m2 und einer Gartenfläche von 640 m2.
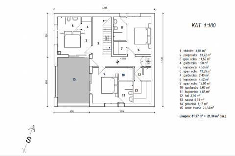
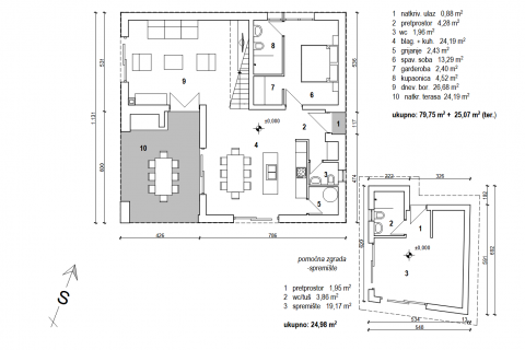
Das Erdgeschoss besteht aus einer Eingangshalle, einem Abstellraum, einem Kleiderschrank, einer Toilette, einem Schlafzimmer mit Bad, einer Küche mit Esszimmer, einem großen Wohnzimmer mit Zugang zu einer Terrasse und einem Swimmingpool mit Liegewiese.
Neben dem Haus befindet sich ein Nebengebäude bestehend aus Vorraum, WC/Dusche und Abstellraum.
Im ersten Stock befinden sich drei Schlafzimmer, jedes mit eigenem Bad und gemeinsamer großer überdachter Terrasse, sowie eine Waschküche, ein Ankleidezimmer und eine Sauna.
Die Heizung wird durch eine Wärmepumpe gelöst und in allen Räumen außer den Schlafzimmern ist eine Fußbodenheizung vorgesehen, obwohl der zukünftige Käufer in der Bauphase mit dem Investor über geringfügige Änderungen in der Farbwahl der Sanitärkeramik entscheiden kann , usw.
Das Haus hat seine eigene Privatsphäre und eignet sich sowohl für das Familienleben als auch als Investition für die touristische Vermietung.

Zusatzinfo

Parken
  • Parkplatz: Ja
  • Parkplatz: 2
  • Stein: Nein
  • Garage: Nein
Infrastruktur
  • Wasser
  • Strom
  • Jauchegrube
Aussicht
  • Autobahnnähe
  • Seaview: Nein
Orientierung
  • Süden
  • Westen
  • Entfernung zum Meer:
 

Anfrage senden

Sagen Sie unserem Agenten, was Sie suchen

m2
m2