- Lokacija:
- Poreč
- Transakcija:
- Za prodaju
- Vrsta nekretnine:
- Kuća
- Ukupan broj soba:
- 6
- Spavaće sobe:
- 5
- Kupaonica:
- 4
- WC:
- 1
- Ukupno katova:
- 3
- Cijena:
- 599.000 €
- Površina:
- 188 m2
U užoj okolici grada Poreča smjestila se dvojnica u novogradnji .
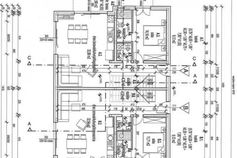
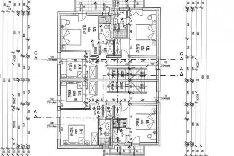
Sastoji se od etaže u prizemlju se smjestila spavaća soba s kupaonom , mali wc te dnevni s kuhinjom.Na prvom katu smještene su tri spavaće sobe s dvije kupaone te drugi kat ima veliku prostoriju u open space konceptu s kupaonom te izlazom na terasu..
Iz prizemlja se izlazi na okućnicu kvadrature 200 m2.
Kući pripada tri parkirna mjesta.
Sastoji se od etaže u prizemlju se smjestila spavaća soba s kupaonom , mali wc te dnevni s kuhinjom.Na prvom katu smještene su tri spavaće sobe s dvije kupaone te drugi kat ima veliku prostoriju u open space konceptu s kupaonom te izlazom na terasu..
Iz prizemlja se izlazi na okućnicu kvadrature 200 m2.
Kući pripada tri parkirna mjesta.
Ostale prostorije
- Kupaonica sa prozorom
- Kuhinja sa prozorom
- Spremište
- Površina balkona/lođe/terase: 10 m2
- Vrsta kuće/vikendice: dvojna
- Godina izgradnje: 2023 god.
- Novogradnja
- Nekretnina (stanje): dovršena
- Stil gradnje: moderan
- Razred energetske učinkovitosti: U izradi
- Lift: ne
- Pristup invalidima: ne
- Dimnjak: ima
- Nekretnina se prodaje/iznajmljuje: nenamještena
- Tlocrtna površina nekretnine: 75 m2
- Parking: da
- Parking (broj): 3
- Natkriveni parking: ne
- Povlašteni parking: ne
- Garaža: ne
- Struja
- Voda
- Grijanje
- Komunalije
- Klasično
- Etažno podno
- Klima uređaj
- Struja
- Voda
- Struja
- Kanalizacija
- Kabelska ili satelitska TV
- djelomično otvoren pogled
- Pogled na more: da
- Jug
- Zapad
- Udaljenost od mora: više od 1km
- U blizini centra
- U blizini glavne ceste / autoputa
- U mirnoj ulici
- U blizini javnog prijevoza
- U blizini škole/vrtića/igrališta
- U blizini trgovine
- U blizini bolnice
- U blizini crkve
- U blizini parka/šume
- Mogućnost zamjene: ne
