- Lokacija:
- Malinska, Malinska-Dubašnica
- Transakcija:
- Za prodaju
- Vrsta nekretnine:
- Kuća
- Ukupan broj soba:
- 5
- Spavaće sobe:
- 4
- Kupaonica:
- 3
- WC:
- 1
- Ukupno katova:
- 2
- Cijena:
- 910.000 €
- Površina:
- 238 m2
- Površina okućnice:
- 880 m2
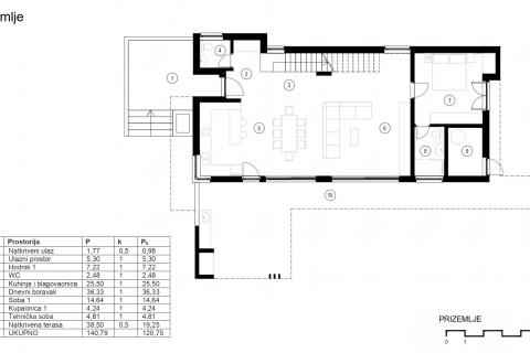
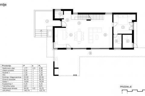
Na mirnoj lokaciji u okolici Malinske, na otoku Krku, smjestila se moderna impozantna vila u izgradnji, savršena za one koji traže luksuz, udobnost i privatnost. Vila se proteže na dvije etaže ukupne stambene površine 215,19 m², a okružena je uređenom okućnicom od 504 m² koja uključuje grijani bazen sa sunčalištem, lounge prostor s ložištem te vanjsku kuhinju i grill zonu. U prizemlju se nalazi prostrani dnevni boravak, kuhinja s blagovaonicom, tehnička soba, dodatna kupaonica, gostinjski WC te jedna soba s izlazom na terasu. Na katu su smještene tri spavaće sobe, od kojih glavna ima vlastitu kupaonicu, a sve sobe imaju izlaz na zajedničku terasu. Dodatni objekt u sklopu okućnice rezerviran je za SPA zonu sa saunom, jacuzzijem i wellnessom. Vila će biti opremljena vrhunskim materijalima – kvalitetnom stolarijom, keramikom i kamenom, modernim sanitarijama, stropnim klimama te podnim grijanjem na dizalicu topline. Okruženje će biti uređeno mediteranskim biljem i kamenim detaljima, stvarajući idealnu oazu za opuštanje.
Ostale prostorije
- Kupaonica sa prozorom
- Kuhinja
- Kuhinja sa prozorom
- Spremište
- Hodnik
- Pripojene prostorije: SPA,STROJARNICA,SPREMIŠTE,SAUNA,WELNES
- Balkon/lođa/terasa
- Površina balkona/lođe/terase: 38 m2
- Vrsta kuće/vikendice: samostojeća
- Godina izgradnje: 2025 god.
- Novogradnja
- Nekretnina (stanje): dovršena
- Stil gradnje: moderan
- Razred energetske učinkovitosti: U izradi
- Lift: ne
- Pristup invalidima: da
- Dimnjak: nema
- Nekretnina se prodaje/iznajmljuje: nenamještena
- Tlocrtna površina nekretnine: 120+95+23 m2
- Parking: da
- Parking (broj): 3
- Natkriveni parking: ne
- Povlašteni parking: ne
- Garaža: ne
- Struja
- Voda
- Komunalije
- Etažno centralno
- Klima uređaj
- Struja
- Dizalica topline
- Voda
- Struja
- Septička jama
- otvoren pogled
- djelomično otvoren pogled
- Pogled na more: ne
- Jug
- Udaljenost od mora: više od 1km
- U mirnoj ulici
- Mogućnost zamjene: ne
