OTOK KRK,PUNAT-dvojna kuća na prodaju 400 metara do mora i plaže

Cijena:
445.000 €
Površina:
234 m2
ID Kod:
300621003-1211

Detalji nekretnine

Lokacija:
Punat
Transakcija:
Za prodaju
Vrsta nekretnine:
Kuća
Ukupan broj soba:
7
Spavaće sobe:
4
Kupaonica:
4
Ukupno katova:
2
Cijena:
445.000 €
Površina:
234 m2
Površina okućnice:
430 m2

Opis nekretnine

Prodajemo u Puntu dvojnu kuću sa započetom adaptacijom.
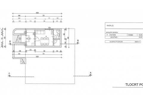
Kuća ima podrum od 24 m2, prizemlje od 104 m2 i kat od 104 m2 koji je povezan s unutarnjim stepenicama.
U podrumu je zamišljen prostor kao konoba za druženja.
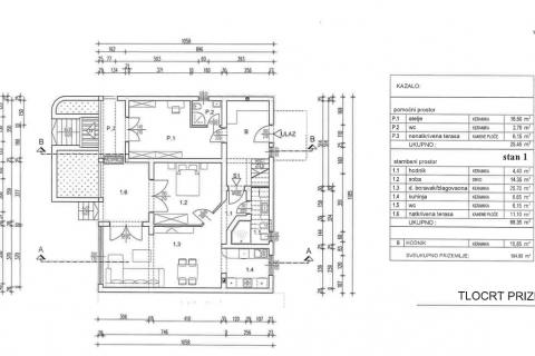
U prizemlju je zamišljen ulazni hodnik ,toalet,atelje sa svojom terasom,spavaća soba,kupaonica,kuhinja,blagovaonica i dnevni boravak s izlazom na terasu.
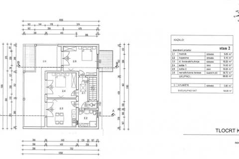
Na prvom katu predviđene su dvije spavaće sobe,dnevni boravak,kupaonica,hodnik i terasa od 38 m2.
Kuća ima izvrsnu okućnicu na kojoj ej mogućnost parkiranja 4 automobila još prostora za bazen.
Agent na Krku, Mirela Petrović tel. +385916413300 [email protected]

Karakteristike

Ostale prostorije
  • Kupaonica sa prozorom
  • Kuhinja
  • Kuhinja sa prozorom
  • Spremište
  • Hodnik
  • Pripojene prostorije: podrum
  • Balkon/lođa/terasa
  • Površina balkona/lođe/terase: 55 m2
Karakteristike
  • Vrsta kuće/vikendice: dvojna
  • Godina izgradnje: 1980 god.
  • Nekretnina (stanje): nedovršena
  • Stil gradnje: klasičan
  • Razred energetske učinkovitosti: U izradi
  • Lift: ne
  • Pristup invalidima: ne
  • Dimnjak: ima
  • Nekretnina se prodaje/iznajmljuje: nenamještena
  • Tlocrtna površina nekretnine: 24+105+105 m2
Parking
  • Parking: da
  • Parking (broj): 4
  • Natkriveni parking: ne
  • Povlašteni parking: ne
  • Garaža: ne
Režije - odvojene
  • Struja
  • Voda
Vrsta grijanja
  • Klasično
Izvor topline
  • Struja
Infrastruktura
  • Voda
  • Struja
Pogled
  • otvoren pogled
  • Pogled na more: ne
Orijentacija
  • Zapad
  • Udaljenost od mora: 300-500m
Opis okruženja
  • U mirnoj ulici
  • U blizini mora/plaže
Ostalo
  • Mogućnost zamjene: ne
 

Pošalji upit

Recite našem agentu što tražite

m2
m2