- Lokacija:
- Šikići, Pula
- Transakcija:
- Za prodaju
- Vrsta nekretnine:
- Stan/Apartman
- Ukupan broj soba:
- 3
- Spavaće sobe:
- 2
- Kupaonica:
- 1
- Kat:
- Prizemlje
- Ukupno katova:
- 2
- Cijena:
- 189.500 €
- Površina:
- 64,19 m2
RE/MAX Centar nekretnina iz ponude izdvaja modernu novogradnju u prigradskom naselju Šikići, na svega 4 km od centra Pule.
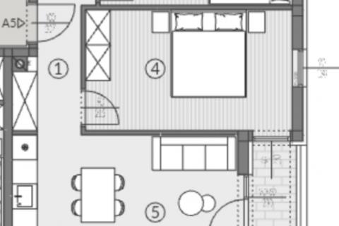
Na prodaju je stan oznake „A5“ ukupne neto površine 64.19 m2, koji se nalazi u prizemlju.
Sastoji se od: hodnika s garderobom, dnevnog boravka, kuhinje i blagovaonice, dvije spavaće sobe, kupaonice i natkrivene terase.
Neto kvadratura samog stana iznosi 57.95 m2.
Stan ima dva parkirna mjesta.
Projekt nudi ugodnu svakodnevicu u prirodnijem i skladnom ambijentu.
Lokacija omogućuje brz pristup školama, trgovinama i prometnim vezama, što ga čini izvrsnim odabirom za obiteljski život ili investiciju.
U izgradnji se primjenjuju visoki standardi gradnje i vrhunski materijali.
Svaka jedinica projektirana je da zadovolji potrebe modernog života, praktičnost, funkcionalnost, moderni dizajn, kvalitetni materijali i izolacija, obilje prirodnog svijeta.
Roh bau gradnja je završena.
U tijeku je opremanje stanova, te je useljenje predviđeno za kraj 2026. godine.
Na prodaju je stan oznake „A5“ ukupne neto površine 64.19 m2, koji se nalazi u prizemlju.
Sastoji se od: hodnika s garderobom, dnevnog boravka, kuhinje i blagovaonice, dvije spavaće sobe, kupaonice i natkrivene terase.
Neto kvadratura samog stana iznosi 57.95 m2.
Stan ima dva parkirna mjesta.
Projekt nudi ugodnu svakodnevicu u prirodnijem i skladnom ambijentu.
Lokacija omogućuje brz pristup školama, trgovinama i prometnim vezama, što ga čini izvrsnim odabirom za obiteljski život ili investiciju.
U izgradnji se primjenjuju visoki standardi gradnje i vrhunski materijali.
Svaka jedinica projektirana je da zadovolji potrebe modernog života, praktičnost, funkcionalnost, moderni dizajn, kvalitetni materijali i izolacija, obilje prirodnog svijeta.
Roh bau gradnja je završena.
U tijeku je opremanje stanova, te je useljenje predviđeno za kraj 2026. godine.
Ostale prostorije
- Okućnica: nema okućnice
- Površina balkona/lođe/terase: 10 m2 m2
- Godina izgradnje: 2025 god.
- Roštilj: nema
- Novogradnja
- Nekretnina (stanje): dovršena
- Stil gradnje: moderan
- Razred energetske učinkovitosti: U izradi
- Lift: ne
- Pristup invalidima: da
- Dimnjak: nema
- Nekretnina se prodaje/iznajmljuje: nenamještena
- Bazen: nema
- Vrt: nema
- Parking: da
- Parking (broj): 2
- Natkriveni parking: ne
- Povlašteni parking: ne
- Garaža: ne
- Struja
- Voda
- Pričuva
- Komunalije
- Klasično
- Klima uređaj
- Struja
- Voda
- Struja
- Kanalizacija
- Internet
- otvoren pogled
- Pogled na more: ne
- Jug
- Zapad
- Udaljenost od mora: više od 1km
- U blizini centra
- Predgrađe
- U mirnoj ulici
- U blizini javnog prijevoza
- U blizini škole/vrtića/igrališta
- U blizini trgovine
- U blizini bolnice
- U blizini crkve
- U blizini mora/plaže
- U blizini parka/šume
- Mogućnost zamjene: ne
