- Lokacija:
- Čižići, Dobrinj
- Transakcija:
- Za prodaju
- Vrsta nekretnine:
- Stan/Apartman
- Ukupan broj soba:
- 3
- Spavaće sobe:
- 2
- Kupaonica:
- 1
- Kat:
- 1
- Ukupno katova:
- 2
- Cijena:
- 265.000 €
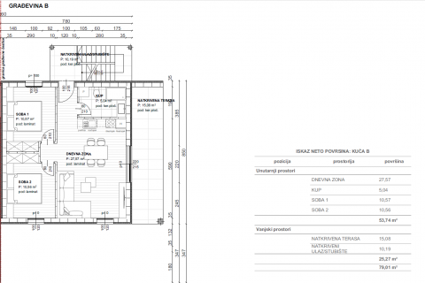
- Površina:
- 79,01 m2
Remax Centar Nekretnina iz ponude izdvaja dvosoban stan od 79 m², smješten u novogradnji u mjestu Čižići na otoku Krku. Ova nekretnina nudi udoban i funkcionalan životni prostor na mirnoj lokaciji, idealnoj za one koji žele biti blizu mora, a daleko od gradske vreve.
Stan uključuje:
-Dnevni boravak povezan s kuhinjom i blagovaonicom
-Dvije spavaće sobe
-Kupaonicu s podnim grijanjem
-Natkrivena terasa
-Osigurano parkirno mjesto
Stan se nalazi na mirnoj lokaciji, a samo nekoliko minuta hoda od prekrasne plaže Čižići. Ovo područje poznato je po čistom moru, ljekovitom blatu u obližnjoj uvali Soline, opuštenoj atmosferi, idealnoj za odmor ili cjelogodišnji boravak.
Klimatizirane sobe, položaj nekretnine i kvaliteta gradnje jamče dugotrajan komfor i sigurnost.
Ova novogradnja je trenutno u izgradnji, a predviđeni kraj radova je u 10. mjesecu 2025 godine. Dostupan je stan u prizemlju, na 1. i 2. katu.
Stan uključuje:
-Dnevni boravak povezan s kuhinjom i blagovaonicom
-Dvije spavaće sobe
-Kupaonicu s podnim grijanjem
-Natkrivena terasa
-Osigurano parkirno mjesto
Stan se nalazi na mirnoj lokaciji, a samo nekoliko minuta hoda od prekrasne plaže Čižići. Ovo područje poznato je po čistom moru, ljekovitom blatu u obližnjoj uvali Soline, opuštenoj atmosferi, idealnoj za odmor ili cjelogodišnji boravak.
Klimatizirane sobe, položaj nekretnine i kvaliteta gradnje jamče dugotrajan komfor i sigurnost.
Ova novogradnja je trenutno u izgradnji, a predviđeni kraj radova je u 10. mjesecu 2025 godine. Dostupan je stan u prizemlju, na 1. i 2. katu.
Ostale prostorije
- Kuhinja
- Okućnica: nema okućnice
- Balkon/lođa/terasa
- Površina balkona/lođe/terase: 13,41 m2
- Godina izgradnje: 2025 god.
- Roštilj: nema
- Novogradnja
- Nekretnina (stanje): dovršena
- Stil gradnje: klasičan
- Razred energetske učinkovitosti: U izradi
- Lift: ne
- Pristup invalidima: da
- Dimnjak: nema
- Nekretnina se prodaje/iznajmljuje: nenamještena
- Bazen: nema
- Vrt: nema
- Parking: da
- Natkriveni parking: ne
- Povlašteni parking: ne
- Garaža: ne
- Struja
- Voda
- Komunalije
- Klasično
- Klima uređaj
- Struja
- Voda
- Struja
- otvoren pogled
- Zapad
- Udaljenost od mora: 300-500m
- U mirnoj ulici
- U blizini mora/plaže
- Mogućnost zamjene: ne
