- Lokacija:
- Donji grad, Donji Grad
- Transakcija:
- Za prodaju
- Vrsta nekretnine:
- Stan/Apartman
- Ukupan broj soba:
- 2
- Spavaće sobe:
- 1
- Kupaonica:
- 1
- Kat:
- 4
- Ukupno katova:
- 5
- Cijena:
- 210.000 €
- Površina:
- 42 m2
RE/MAX Centar nekretnina iz svoje ponude izdvaja stan u Zagrebu, u Bauerovoj ulici u blizini Vlaške.
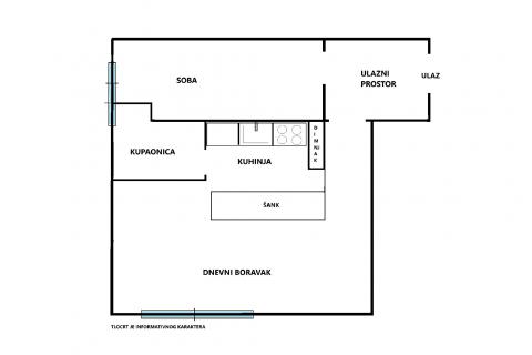
Stan se nalazi na IV. katu zgrade s liftom a sastoji se od ulaznog hodnika, manje spavaće sobe, dnevnog boravka s kuhinjom i kupaonice. Potrebna mu je adaptacija.
Pripadaju mu i dva spremišta u podrumu zgrade.
Na zgradi je prije cca 3 godine promijenjeno krovište i stavljena nova fasada te je u podrumu postavljen novi pod (epoxy).
S postavljenom novom fasadom promijenjeni su i prozori stana (drveni).
Izuzetno uredna zgrada na izvanrednoj lokaciji!
Stan se nalazi na IV. katu zgrade s liftom a sastoji se od ulaznog hodnika, manje spavaće sobe, dnevnog boravka s kuhinjom i kupaonice. Potrebna mu je adaptacija.
Pripadaju mu i dva spremišta u podrumu zgrade.
Na zgradi je prije cca 3 godine promijenjeno krovište i stavljena nova fasada te je u podrumu postavljen novi pod (epoxy).
S postavljenom novom fasadom promijenjeni su i prozori stana (drveni).
Izuzetno uredna zgrada na izvanrednoj lokaciji!
Ostale prostorije
- Kupaonica sa prozorom
- Spremište
- Hodnik
- Okućnica: nema okućnice
- Godina izgradnje: 1940-1950 god.
- Roštilj: nema
- Nekretnina (stanje): dovršena
- Stil gradnje: klasičan
- Razred energetske učinkovitosti: U izradi
- Lift: da
- Pristup invalidima: uz manju adaptaciju
- Dimnjak: ima
- Nekretnina se prodaje/iznajmljuje: namještaj po dogovoru
- Bazen: nema
- Vrt: nema
- Parking: ne
- Natkriveni parking: ne
- Povlašteni parking: da
- Garaža: ne
- Vanjska stolarija: 2022 god.
- Krov: 2022 god.
- Fasada: 2022 god.
- Struja
- Plin
- Pričuva
- Komunalije
- Voda
- nema
- Struja
- Plin
- Voda
- Struja
- Plin
- Kanalizacija
- otvoren pogled
- Jug
- Zapad
- Centar
- U blizini glavne ceste / autoputa
- U blizini javnog prijevoza
- U blizini škole/vrtića/igrališta
- U blizini trgovine
- U blizini bolnice
- U blizini crkve
- U blizini parka/šume
- Mogućnost zamjene: ne
