- Lokacija:
- Oporovec, Gornja Dubrava
- Transakcija:
- Za prodaju
- Vrsta nekretnine:
- Stan/Apartman
- Ukupan broj soba:
- 4
- Spavaće sobe:
- 3
- Kupaonica:
- 1
- WC:
- 1
- Kat:
- Prizemlje
- Ukupno katova:
- 1
- Cijena:
- 297.000 €
- Površina:
- 90 m2
- Površina okućnice:
- 160 m2
Prodaje se četverosoban stan u novogradnji u Gornjoj Dubravi u Oporovcu. Zgrada ima četiri stana i dio je mini stambenog naselja s ukupno pet zgrada.
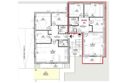
Stan P3-S2 nalazi se u prizemlju a sastoji se od tri spavaće sobe, dnevnog boravka s kuhinjom, kupaonice, dodatnog toaleta, hodnika i balkona, sveukupno neto stambenog prostora 60 m2.
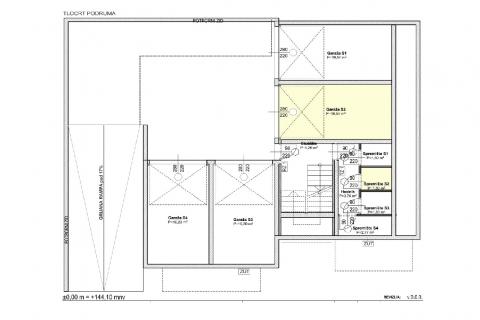
Ima vlastiti vrt veličine 160 m2 a pripadaju mu još i garaža (16,50 m2), vanjsko parkirno mjesto (12,50 m2) i spremište (1,80 m2) u podrumu zgrade s grijanim ulazom, sve u cijeni stana.
Zgrada je građena najmodernijim tehnikama građenja; armirano betonska konstrukcija, fasada s toplinskom izolacijom 15 cm, dizalice topline, podno grijanje, klima uređaji u svim sobama, PVC stolarija s troslojnim staklom i komarnicima.
Planirani rok završetka je prva polovina 2026.g. a u ovoj fazi su moguće još neke manje preinake i izbor materijala (parketi, pločice).
Lijepa, mirna lokacija s pogledom na šumu i grad, blizina autobusne stanice, trgovine, kafića, osnovne škole i svih ostalih važnih sadržaja.
Mogućnost financiranja kreditom banke.
Stan P3-S2 nalazi se u prizemlju a sastoji se od tri spavaće sobe, dnevnog boravka s kuhinjom, kupaonice, dodatnog toaleta, hodnika i balkona, sveukupno neto stambenog prostora 60 m2.
Ima vlastiti vrt veličine 160 m2 a pripadaju mu još i garaža (16,50 m2), vanjsko parkirno mjesto (12,50 m2) i spremište (1,80 m2) u podrumu zgrade s grijanim ulazom, sve u cijeni stana.
Zgrada je građena najmodernijim tehnikama građenja; armirano betonska konstrukcija, fasada s toplinskom izolacijom 15 cm, dizalice topline, podno grijanje, klima uređaji u svim sobama, PVC stolarija s troslojnim staklom i komarnicima.
Planirani rok završetka je prva polovina 2026.g. a u ovoj fazi su moguće još neke manje preinake i izbor materijala (parketi, pločice).
Lijepa, mirna lokacija s pogledom na šumu i grad, blizina autobusne stanice, trgovine, kafića, osnovne škole i svih ostalih važnih sadržaja.
Mogućnost financiranja kreditom banke.
Ostale prostorije
- Kuhinja sa prozorom
- Spremište
- Hodnik
- Okućnica: u vlasništvu
- Balkon/lođa/terasa
- Godina izgradnje: 2025 god.
- Roštilj: nema
- Novogradnja
- Nekretnina (stanje): dovršena
- Stil gradnje: moderan
- Razred energetske učinkovitosti: U izradi
- Lift: ne
- Pristup invalidima: ne
- Dimnjak: nema
- Nekretnina se prodaje/iznajmljuje: nenamještena
- Bazen: nema
- Vrt: vlastiti
- Parking: da
- Natkriveni parking: ne
- Povlašteni parking: ne
- Garaža: da
- Struja
- Voda
- Pričuva
- Komunalije
- Centralno
- Dizalica topline
- Voda
- Struja
- Kanalizacija
- otvoren pogled
- Pogled na more: ne
- Jug
- Istok
- U blizini glavne ceste / autoputa
- U mirnoj ulici
- U blizini javnog prijevoza
- U blizini škole/vrtića/igrališta
- U blizini trgovine
- U blizini bolnice
- U blizini crkve
- U blizini parka/šume
- Mogućnost zamjene: ne
